Myynnissä kerrostalosta kokonainen kerros
Kerrostalokohde – yksiöt
Kuvassa nykyinen ja rakennusluvan mukainen pohjapiirustus
Neljä uutta yksiötä – asuntojen esittely rakennuttajalle ja sijoittajalle
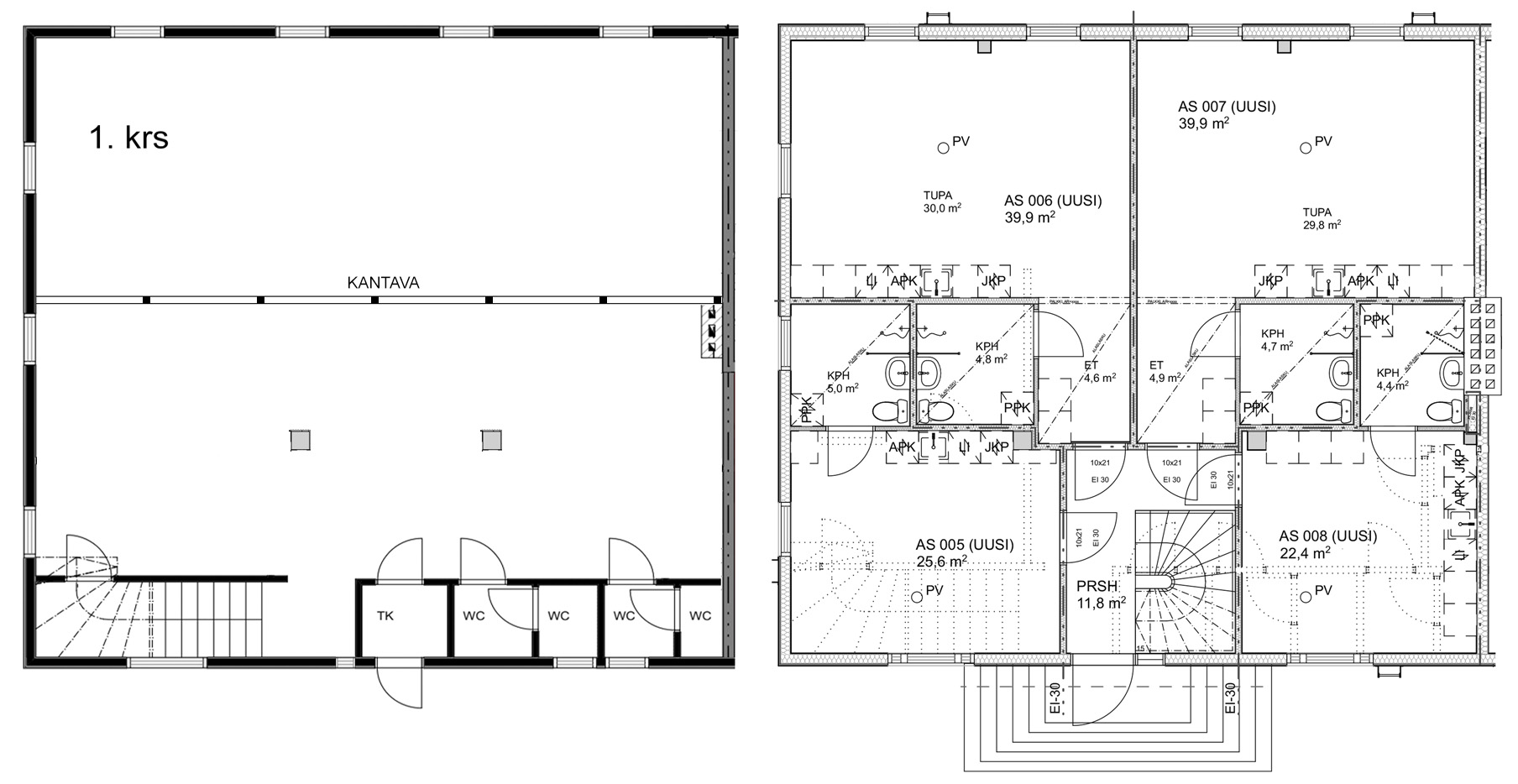
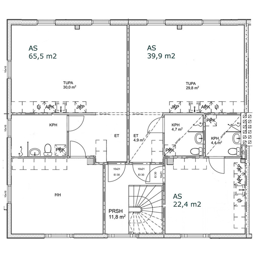
1. Pohjakuva
Rakennusluvanmukaisessa pohjakuvassa on neljä uutta yksiötä (AS 005–008) sijoitettuna yhteisen porrashuoneen (PRSH, 11,8 m²) ympärille. Asunnot jakautuvat kahteen isompaan (AS 006 ja AS 007, 39,9 m²) ja kahteen kompaktiin (AS 005, 25,6 m² ja AS 008, 22,4 m²).
2. Asuntokohtainen tilaohjelma
AS 006 (UUSI) – 39,9 m² | Vasen yläasunto
- Tupa 30,0 m²: Avara yhdistetty oleskelu- ja keittiötila, luonnonvalo kahdelta sivulta
- KPH 4,8 m²: Täysikokoinen kylpyhuone wc-istuimella ja suihkulla
- ET 4,6 m²: Erillinen eteinen selkeänä tilajakajana
- Varustelu: APK (astianpesukone), JKP (jääkaappipakastin), PPK-liitännät
AS 007 (UUSI) – 39,9 m² | Oikea yläasunto
- Tupa 29,8 m²: Peilikuvana AS 006:sta, vastaava tilavuus ja valoisuus
- KPH 4,7 m²: Täysikokoinen kylpyhuone
- ET 4,9 m²: Hieman väljempi eteinen kuin AS 006:ssa
- Varustelu: APK, JKP, PPK-liitännät
AS 005 (UUSI) – 25,6 m² | Vasen alakomppakti
- Avoin asuntotila luonnonvalolla (PV-merkintä)
- KPH 5,0 m²: Suurin kylpyhuone kaikista neljästä asunnosta
- Kompakti mutta toimiva pohjaratkaisu
- Varustelu: APK, JKP, PPK-liitännät
AS 008 (UUSI) – 22,4 m² | Oikea alakompakti
- Pienin asunto, mutta hyvin varusteltu (PV, APK, JKP)
- KPH 4,4 m²: Täysimittainen kylpyhuone suhteessa asunnon kokoon
- Tehokkain neliöhyöty – sopii erityisesti sijoituskohteeksi
3. Myyntiargumentit rakennuttajalle
Tuottopotentiaali
- Yksiöt tuottavat parhaan vuokratuoton suhteessa hankintahintaan
- Neljä erillistä asuntoa yhden kerroksen pohjasta maksimoi vuokratulon
- AS 005 ja AS 008 soveltuvat erinomaisesti sijoitusasunnoiksi kilpailukykyisellä hinnalla
- AS 006 ja AS 007 (39,9 m²) ovat houkuttelevia myös ensiasunnon ostajille
Rakentamistehokkuus
- Yhteinen porrashuone (PRSH 11,8 m²) palvelee kaikkia neljää asuntoa
- Märkätilat sijoitettu yhteen vyöhykkeeseen – tekniset kustannukset minimoitu
- EI-30-luokitellut ovet porrashuoneessa täyttävät paloturvallisuusvaatimukset
- Peilikuvapohja (AS 006/007) tehostaa rakentamista ja vähentää suunnittelukustannuksia
Markkinakelpoisuus
- Yksiöiden kysyntä erityisesti kasvukeskuksissa on jatkuvasti korkea
- Kokovalikoima 22,4–39,9 m² tavoittaa eri ostaja- ja vuokraajaprofiilit
- Hyvä varustelu (APK, JKP, PPK) kaikissa asunnoissa – kilpailuetu markkinoilla
4. Yhteenveto
Neljä asuntoa yhdessä kerroksessa - maksimoitu vuokratuotto per kerros
Kokovalikoima 22–40 m² - Laaja ostajaprofiili
Täysin varusteltu kylpyhuone kaikissa - Kilpailukykyinen markkinoilla
Yhteinen tekniikkarunko - Alhaisemmat rakennuskustannukset
EI-30 paloturvallisuus - Rakennusmääräykset täyttyvät
Rakennusaikainen muutos - esimerkki erilaisesta pohjasta

1. Pohjakuva
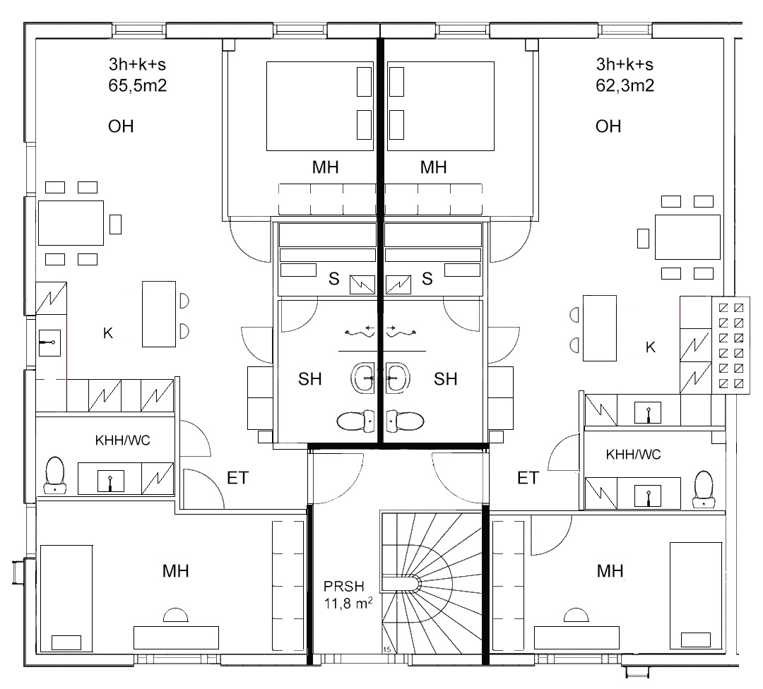
Kohteessa on kaksi peilikuvana toteutettua asuntoa per kerros. Asunnot sijoittuvat keskeisen porrashuoneen (PRSH, 11,8 m²) ympärille. Ratkaisu on sekä arkkitehtonisesti tehokas että toiminnallisesti selkeä.
2. Asuntokohtainen tilaohjelma
Asunto A – 65,5 m² (3h+k+s)
- OH – Olohuone: Tilava tila luonnonvalolla, avoin yhteys ruokailualueeseen
- K – Keittiö: Erillinen, selkeä sijoittelu kaapistoineen
- MH × 2 – Makuuhuoneet: Rauhallinen sijoittelu asunnon perällä
- KHH/WC – Kodinhoitohuone ja erillinen WC
- ET – Eteinen: Selkeä sisääntulo kulkureitteineen
- SH – Kylpyhuone: Jaettu tekninen ydin naapuriasunnon kanssa
Asunto B – 62,3 m² (3h+k+s)
- Vastaava tilaohjelma peilikuvana A-asunnosta
- Hieman kompaktimpi pinta-ala säilyttäen täyden huonemäärän
- Sama toiminnallinen laatu ja markkinakelpoisuus
3. Myyntiargumentit rakennuttajalle
Rakentamistehokkuus
- Symmetrinen pohja minimoi rakennuskustannuksia
- Tekniset tilat (SH, WC) sijoitettu keskitetysti yhteiseen märkätilasydämeen
- Yhteinen porrashuone palvelee molempia asuntoja – hyötyneliösuhde optimoitu
- Peilikuvapohja mahdollistaa tehokkaan ja toistuvan rakentamisen
Markkinakelpoisuus
- 3h+k+s on kysytyin perheasuntokoko sekä vuokra- että omistusmarkkinoilla
- Kaksi erillisen makuuhuonetta soveltuu perheille, pariskunnille ja etätyöntekijöille
- Erillinen kodinhoitohuone (KHH/WC) lisää asumismukavuutta ja houkuttelevuutta
Toiminnallisuus ja asumislaatu
- Selkeät kulkureitit ilman turhia käytäviä – neliöt hyödynnetään tehokkaasti
- Makuuhuoneet sijoitettu rauhalliselle puolelle erilleen oleskelualueesta
- Eteinen (ET) luo selkeän rajan julkisen ja yksityisen tilan välille
4. Yhteenveto
- Symmetrinen pohjaratkaisu - Toistettava ja kustannustehokas
- Kysytty asuntotyyppi (3h+k+s) - Nopea myynti/vuokraus
- Optimoitu neliötehokkuus - Parempi tuotto/m²
- Erillinen KHH / WC - Kilpailuetu markkinoilla
- Porrashuone palvelee kahta asuntoa - Alhaisemmat ylläpitokustannukset
- EI-30 paloturvallisuus - Rakennusmääräykset täyttyvät

Myynnissä kerrostalon kivijalan liiketilat
Kolme liiketilaa – esittely rakennuttajalle ja sijoittajalle
C13, C14, C15 | Pohjakuva-analyysi ja vuokrausargumentit
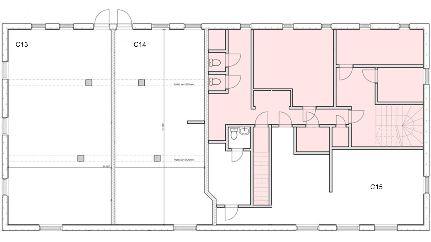
1. Pohjakuva
Pohjakuvassa on kolme kivijalkaliiketilaa (C13, C14, C15). C13 ja C14 ovat avoimen pohjan hallitiloja vasemmalla puolella, C15 on oikealla sijaitseva valmiiksi osastoitu tila saniteettitiloineen (merkitty vaaleanpunaisella).
2. Huoneistokohtainen tilaohjelma
C13 – Avoin hallitila (vasen)
- Vapaa avoin pohjaratkaisu ilman väliseiniä – muunneltavissa joustavasti
- Suorakaiteen muotoinen tila, kaksi kantavaa pilaria (a=2120 mm) rytmittävät pohjan
- Sisäänkäynti pohjoisen julkisivun kautta
- Sopii: myymälä, toimisto, ravintola, palvelutila, studio tai showroom
- Saniteettitilat yhteisessä vyöhykkeessä C15:n kautta tai erillisenä lisätyönä
C14 – Avoin hallitila (keskellä)
- Vastaava avoin pohja kuin C13, peilikuvana tai jatkumona
- Kaksi kantavaa pilaria (a=2120 mm), palkkikorkeus 2120 mm huomioitava suunnittelussa
- Voidaan yhdistää C13:n kanssa suuremmaksi kokonaisuudeksi väliseinää poistamalla
- Sopii: samat käyttötarkoitukset kuin C13, tai C13+C14 yhdistettynä isona tilana
C15 – Osastoitu liiketila (oikea)
- Valmiiksi osastoitu tila useammalla huoneella – valmis muuttoon lähes sellaisenaan
- Omat saniteettitilat
- Porrashuoneyhteys ullko-oville
- Erillisiä huonetilat
3. Myyntiargumentit rakennuttajalle
Sijainti ja näkyvyys
- Kivijalkatilojen ensisijainen etu: katutason näkyvyys ja helppo saavutettavuus
- Julkisivun sisäänkäynnit takaavat hyvän jalankulkijavirran hyödyntämisen
- Kivijalkaliike ankkuroi koko rakennuksen kaupunkikuvaan ja lisää asuinalueen elinvoimaisuutta
Joustavuus ja muunneltavuus
- C13 ja C14 vapaan pohjan tilat mahdollistavat lähes minkä tahansa liiketoiminnan
- C13 ja C14 voidaan vuokrata yhdelle toimijalle suurena kokonaisuutena tai erikseen kahdelle
- C15 soveltuu välittömästi käyttöön valmiine osastointeineen – nopea vuokraus.
- Kaikki kolme tilaa voidaan hyödyntää yhtenä kokonaisauutena
Tuottopotentiaali rakennuttajalle
- Kolme itsenäistä liiketilayksikköä hajottaa tyhjäkäyntiriskiä
- Kivijalkaliiketilat sijoituskohteena: vakaat pitkäaikaiset vuokrasopimukset tyypillisiä
- C15 voidaan vuokrata korkeammalla neliövuokralla valmiusasteensa ansiosta
- C13 ja C14 houkuttelevat kasvuyrityksiä ja pop-up-toimijoita joustavuutensa vuoksi
4. Yhteenveto
Kolme erillistä liiketilaa - hajautettu vuokrausriski
Vapaa pohja (C13, C14) - laaja vuokraaja- ja ostajapotentiaali
Valmis osastointi (C15) - nopea käyttöönotto ja vuokraus
C13+C14 yhdistettävissä - joustavuus suurille toimijoille
C13+C14+C15 yhdistettävissä- joustavuus suuremmille toimijoille
Katutason kivijalkasijainti - näkyvyys ja elinvoimaisuus
Lisää pohjavaihtoehtoja
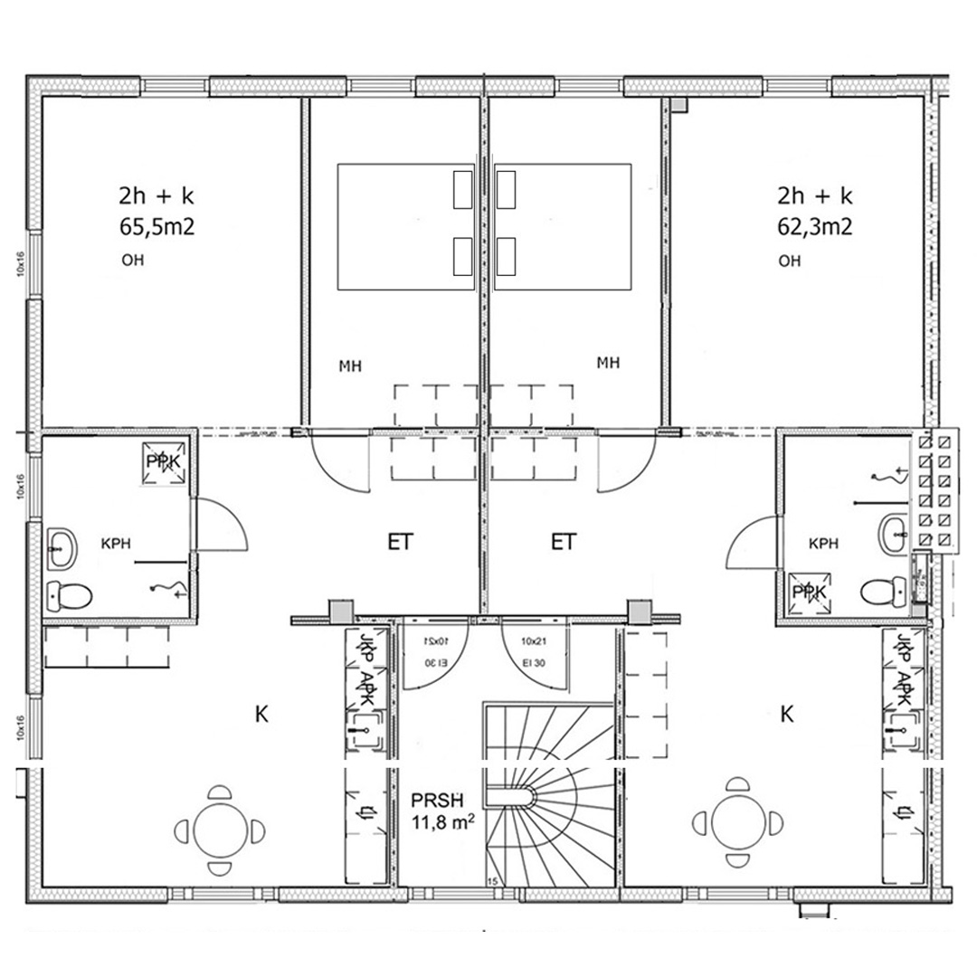
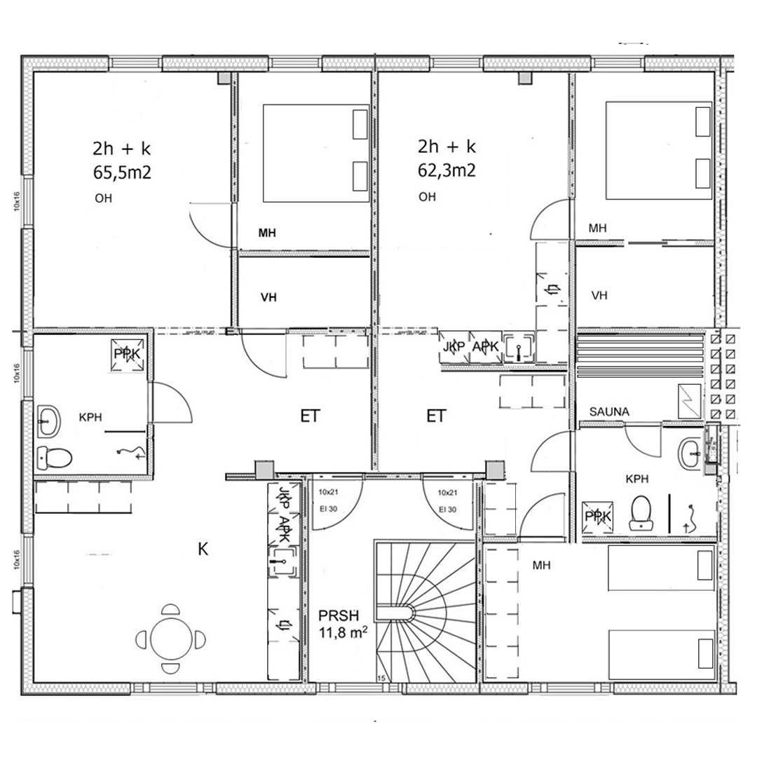
Malliasuntoja 22,4 m2 - 65,5 m2

Malliasunnot 65,5 m2 ja 62,3 m2

Kaksiot 65,5 m2 ja 62,3 m2
Malliasunnot 65,5 m2 ja 62,3 m2
Rakennusluvan liitekuvat
Julkisivu koilliseen
Julkisivu lounaaseen
Julkisivu luoteeseen
Julkisivu kaakkoon
Asemapiirros







